San Jose Del Cabo
San Jose Del Cabo
San Jose Del Cabo
ARQUITECTÓNICA
San Jose Del Cabo
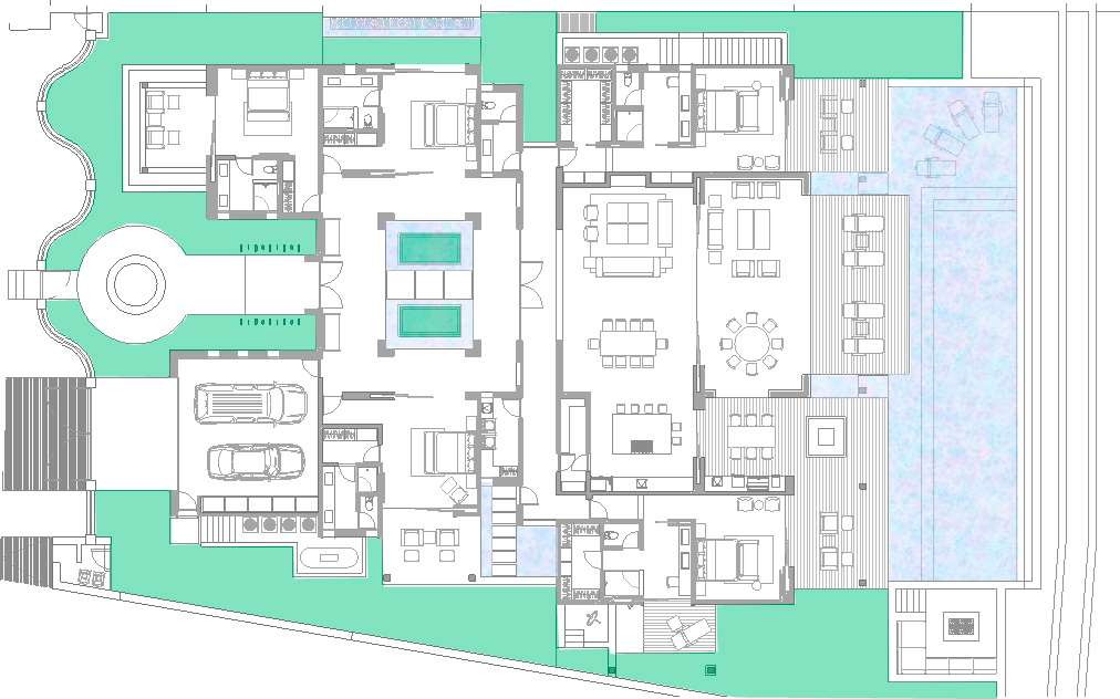
Casa 87
Cliente: RESIDENCIAS PALMILLA
CASA 87
Ubicación
San José del Cabo, BCS
Sup. Construcción
Área construida A/A: 457.00 m2
Área construida: 74.00 m2
Área terrazas cubiertas: 65.04 m2
Área terrazas no cubiertas: 121.90 m2
Área alberca: 208.00 m2
Descripción del Proyecto
Casa 87 cuenta con 5 recámaras; dos de ellas “master”, ya que cuentan con una vista excepcional al mar de Cortés y tres recámaras que cuentan con vistas a los diferentes jardines y/o espejos de agua de la casa. Cada una de las recámaras cuenta con un closet, un baño completo y una terraza exterior.
Los espacios sociales y las recámaras master cuentan con sistema de automatización que permite controlar el audio, aire acondicionado e iluminación de manera remota para brindar un mayor confort en los espacios.










